НР4-35.29.4-2л

Чертеж изделия:
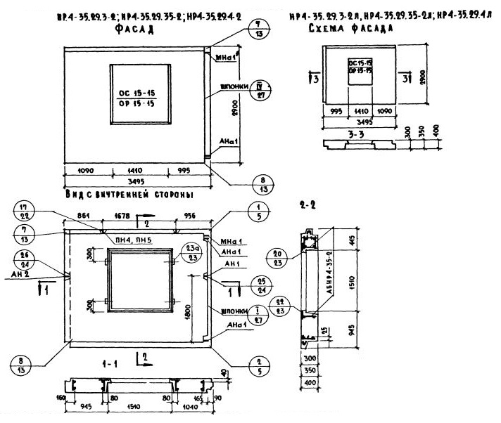
Характеристики изделия:
ПараметрЗначение
Длина3495 мм
Ширина400 мм
Высота2900 мм
Масса4290 мм
Нормативный документСерия 1.132-1

НР4-35.29.4-2л   Наружная стеновая панель рядовая по Серии 1.132-1.