НР1-66-29.3-4бл-1

Чертеж изделия:
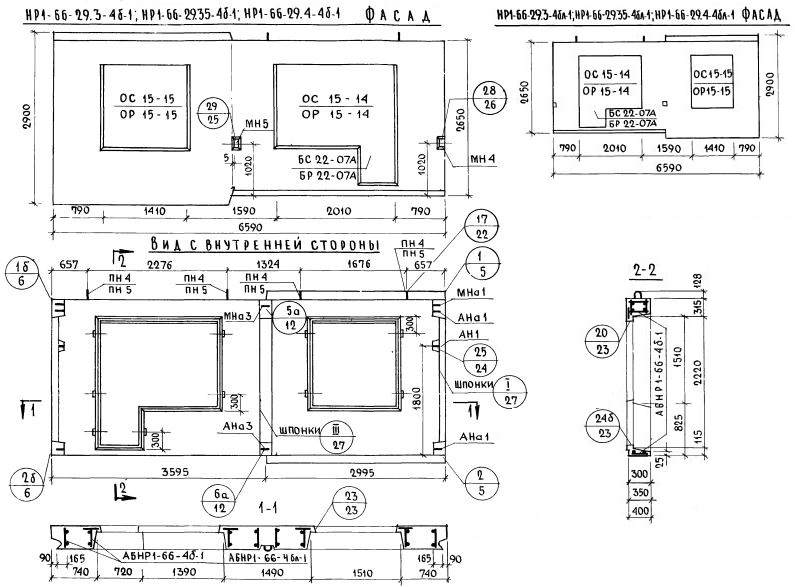
Характеристики изделия:
ПараметрЗначение
Длина6590 мм
Ширина300 мм
Высота2900 мм
Масса5430 кг
Нормативный документСерия 1.132-1

НР1-66.29.3-4бл-1   Наружная стеновая панель рядовая по Серии 1.132-1.